tech hq in san francisco, ca
design development package samples
Below are samples of design development design packages I developed for LinkedIn’s headquarters in San Francisco.
penthouse work cafe
executive breifing center
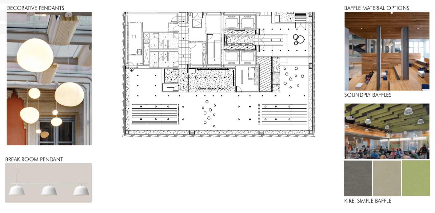
bank hq design development package
Below are sample images of a design development package I put together for a major financial client. The goal of this deliverable was to get final buy-off on design elements from the client in order to proceed with pricing. The concept below illustrates how each collaboration space is designed on a spectrum. Materiality and design elements vary based on each type of collaboration space. Includes space plans, reflected ceiling plans, design elements, materiality selections, and photorealistic renderings.
SPACE PLANS




DESIGN ELEMENTS





DESIGN RENDERINGS



